房地产
房产
地产
二手房
当前位置:
首页
>
二手房
>超新规住宅被限!二手房业主终于看到光了
超新规住宅被限!二手房业主终于看到光了
2026-04-19 23:30:17
超新规住宅被限!二手房业主终于看到光了
开水菌的开场白
广州的新规一手房经过2年多的乱象搏杀
终于又进入了新规的收紧调整阶段
收紧力度之大,宛如15年的深圳
这次的规范收紧
会对未来的新房产品设计造成什么影响
二手房是否又能摆脱血脉压制重获生机?
开文说说
这份是今年3.26广州自资局和住建引发的新规文件
结合3月初的土地推介PPT内容
挑重点给大家讲讲更新了哪些细则:
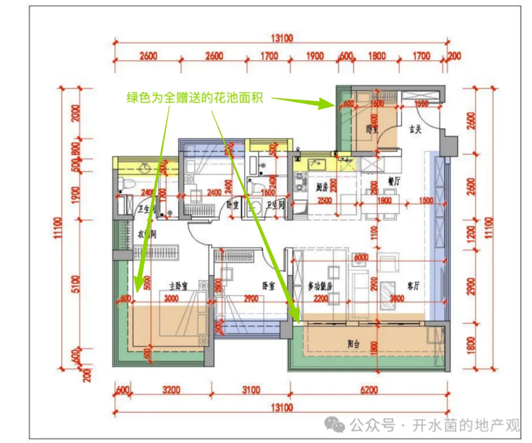
1.住宅40m以上的部分不宜设置花池:
新规住宅花池报建
现在不少新房阳台和房间的报建都会叠加花池来报建
600mm的花池是全赠送的
如果住宅40m以上的部分不让做花池
那么花池偷房间/阳台面积的操作就没意义了
没了花池,全屋投影面积直接缩水3%;
真花池如果保留不拆的样子
花池的存在不仅遮挡阳光、难以清理打扫
还有高空坠物的风险
这种鸡肋的垂直绿化的设计
如果不让拆了跟阳台打通的话
应该没有人会想要吧
2.飘窗要做成凸飘窗,且飘窗的面积占比不得大于建筑面积10%:
10%这个限制虽然没有文件指导
但也属于窗口指导了
且看4月后新审批的项目
飘窗比例限制这个打击对于一手来说还是非常大的
要知道当前广州高赠送的天花板——中jian岭nan序
双U全景仓118㎡户型得房率足足有离谱的150%
就是靠着拉开住宅的周长
将飘窗比例最大化然后再拆掉做出来的
飘窗的面积贡献率足足占了离谱的27%
人家是卧室边上加了个飘窗
他却是飘窗上面长了点卧室
中jian岭nan序118㎡户型
当然这个是特殊的案例存在
但即便是当前市面其他的新规一手项目
飘窗比例也大多在15~20%之间
又因为飘窗是全赠送的空间
所以如果将20%的飘窗比例限制到10%
相当于整体使用面积直接砍掉10%
那么现在105~110%的投影实用率就会直接降低到95~100%
叠加砍掉花池的3%,妥妥的投影实用率回到90%+这个区间了
而这个水平距离常规的二手房(也有阳台和飘窗,普遍的投影实用率在92~95%)就差距不大了,大家又重新回到了勉强能同台竞争的水平
3.杜绝违规拆改,飘窗、花池、构造柱不让拆:
这是本次新规限制最最重点的一条
尤其是飘窗让不让拆这条前后体感差距是非常明显的
小红书上就已经有博主实地探访了零飘窗项目的保li辰yuan湖境
本来飘窗全打的户型,受到新规影响被迫给板房重新加回了800mm的飘窗,视觉上直接从“一个完整的房间”变成“剩下半个房间”
辰园hu境主卧加飘窗前后对比
辰园hu境餐厅加飘窗后
辰园hu境次卧加飘窗后
明显看出,800mm的飘窗加上去之后
主卧的活动区域就只剩下过道
两个小房间不仅
开窗面
变窄
功能方面也从原来的1.5m床如今只能做成架在飘窗上的榻榻米
空间的灵活性明显大打折扣
家具能够摆放的空间也失去了
可能性
由于这些新规在售项目从设计之初就是按照飘窗全拆的思路去做户型布局的,如果不让拆飘窗了,功能使用上会有相当多的不合理性,那么是不是意味着现在这批在售的新规房子不能买了呢?
也不完全
针对近期开发商做假飘窗收楼然后拆掉的偷面积做法,大概分为四种处理办法:
·已经验收的:
验收完毕已成既定事实的,就不再处理,比如天瑞;
·已经建成的项目,但还没完成验收的:
这部分应该是需要按实际飘窗打拆后的面积重新计算容积率,然后针对超出的面积开发商补地价,然后这事就算过去了,就是拆还是要拆只不过开发商买单。差不多买家花100㎡的钱,最后得到了产证115㎡的房子,这个具体还看实操落地情况;
·正在卖的:
已经批了建了的大概按第二种先斩后奏来处理,已经批但还没建的大概率户型报建要回炉重铸,要按照新规“真飘窗”来做了,也就是说即便收楼也是完全拆不掉的真飘窗;
·拿地还没建、新卖的地块:
这些就得完全按照新规来了;
这里补充一点,新规里的真飘窗是指长隆悦府那种真的800mm宽,下面是挑空的飘窗,跟以往的二手房一样,打是肯定打不掉的了,最多外立面给你拿格栅挡一下这个空当。
泓景花园的真飘窗下方是挑空不可砸
所以在新规之下,大概率不会再在小面积的产品里面见到那种转角/U型全景飘窗了,仅剩的10%飘窗会相对均匀地分布在各个区域内(房间、卫生间、厨房、餐厅等)
至此,超新规的全屋超25%比例的800mm飘窗可全砸,
投影实用率可以做到110~150%的超标新规产品
将成为广州住宅过往的一段明星历史。
4.阳台占比不超20%:
为应对下行市场&响应国家“好房子”的号召
24年的广州住宅新规针对阳台最高比例放宽到了30%
典型代表如南沙的招商林yu境
全屋4阳台号称广州4代住宅标杆
一套房子差不多一半都是阳台
如今阳台报建从30%收紧到20%
意味着投影面积100㎡的房子
将直接少了10㎡的投影面积
林yu境的阳台报建
当然并不是所有楼盘都按30%阳台比例顶格报建
因为做满30%阳台就意味着就会做成像林yu境一样的“四代住宅”产品
阳台只能错层设置
要不然会严重影响客厅或者房间采光
这样的房子其实二手市场接受度并不高
看金碧华府就知道了
噱头大于实用性
所以即便阳台比例从30%回归到20%
由于目前市面项目大多都没超20%
对后续的新房设计影响并不大
林yu境的超大比例阳台
5.新规收紧的看法:
在我们早前的文章中反复提到过
广州的高赠送到底送了多少?
爆!传广州倒查严查住宅“偷面积”!
广州的楼市,无尽的背刺
广州得房率越来越离谱的住宅超标新规
其实就是一种强撑脸面的变相降价
购房人钱没多花,但是到手的面积更大了
如此一来,在宏观数据上
就实现掩盖一手房价没跌的假象
看起来广州的数据依旧稳中向好,欣欣向荣
实则败絮其中、有苦难言
这一切的操作为了服务土财卖地
虽然超新规会背刺二手和既往拿地的开发商
但至少这样还能保住卖地收益不断
新规的高赠送实用率就是广州默许给开发商变相降价的一张专属绿通
明眼人都知道这样的做法无异于杀鸡取卵、饮鸩止渴
明白降价的游戏是玩不下去
内卷的本质
都是因为蛋糕小了从而不得不卷
能
正常姿势
做生意谁想不择手段?
正经能有班上谁想送外卖跑滴滴?
既然今天能卷到150%
那明年是不是还能卷到300%?
在这样的预期之下
即便高赠送可以解地方财政一时的燃眉之急
但最终只会打击更多购房人和开发商的信心
所以问题回归到了房地产的下行
而房地产下行有归根于经济的下行
百姓的收入和信心下行了
这样的恶性循环症结不在广州
单靠着广州自己也解决不了大环境的问题
就只能无奈杀鸡取卵,向内索求
而此次市府主动收紧新规无异于壮士断腕、悬崖勒马。看得出广州终于想下决心收拾过去3年因为新规被搅浑的广州新房市场乱象
但由此也将会直接面临两难的局面:
·要么地价维持不降,开发商因为算不过账从而拿地意愿降低或不拿地,卖地收入暴跌;
·要么是市府主动降低地价,降低开发商的拿地成本,让开发商去卖更低的价格,同样的得房率就只能跟二手打价格战,但降价的直接结果就是拿上台面的数据崩塌,难以向上交差;
但是无论哪个局面都意味着财政得自断一臂
6.新规下来之后会有哪些影响?
对已经买到新规房的业主来说:
恭喜你们,赶上了这趟高赠送的好时代。市面上还有些没卖完的超标新规可以赶赶末班车(想知道哪些是超新规项目有兴趣的小伙伴可以私聊);当然没买到的也不必灰心,这些高赠送楼盘进入二手也是有大把机会挑的;
对于手里拿着旧规二手房的业主来说:
新房这个卷无止境的吸血鬼收手了,头顶上压着的狗东西终于被拿掉,如释重负,又回到同一水平竞争了,再也不是一手单方面对二手无情虐杀的局面了;
对还在卖新房的开发商来说:
终于不用担心自己还没卖完货被更高得房率的新规卷死了;
对于准备以后在广州拿地的开发商来说:
如果地价没有很划算的情况下,会进入一段观望时期,看看新规后的验收细则落地情况再做打算;
对于广州ZF来说:
实用率下来意味着开发商也得跟着降价,房价降地价也得跟着降,卖地收入得凉一阵子了;
最后
看似皆大欢喜的局面
压力最终来到了广州的地方财政这边
整饬乱象固然是好事
但是导致下行局面的经济问题
才是我国当前亟待解决的问题
想进【广州买房交流群】
扫描下方二维码回复:
进群
一对一咨询、板块分析,回复:
咨询
我是开水菌,只讲广州楼市真话,不忽悠无套路。
如果觉得文章有用,右下角点个【点赞👍🏻】+【推荐❤️】
让身边的买房人也少踩坑
往期推荐:
·
【开水福利】火热购房季,咨询免费享
·
华快即将免费,他却高兴不起来
·
刚需盘的会所,不过是骗你买房的“一次性道具”
本文来自网友投稿或网络内容,如有侵犯您的权益请联系我们删除,联系邮箱:wyl860211@qq.com 。
【5月13日 兰州站】AI引爆获客——房产AI短视频智能创作与精准引流指南
【二手房】业主急出,金沙湾一期雅韵苑,3房2厅,103平
最新文章
【5月13日 兰州站】AI引爆获客——房产AI短视频智能创作与精准引流指南
财税干货|法院判决房产交易无效,契税能退吗?不受 3 年限制!依据全列明
星火初燃 未来可期—解锁永徍房产新生代的成长之路
即日起 来大洋房产中介登记房源客户 送礼品
扬州同城二手房 梅岭本部双书包房
[第0410期]杭州富阳二手房最新成交!总价最低49万,最高500万,这些小区最抗跌!
惠州金山湖岛内各大豪宅 3月二手房实际成交价!
【降价急售】️金江二手房,两房,单价3272元,首付0元,月供1214元,面积88平方,总价28.8万️
【黄平润达房产·在家就能做的二手房副业】
【安家房产·买房仅需3000中介费】煤炭公司四合院,64.9㎡,22万急售!
热门文章
深圳二手房情报局2026年04月09日
佛山二手房成交最新数据【第20260410】
上海二手房收购首单终于落地,为什么成交这么难?
房产大V返佣大战,上海楼市的遮羞布被撕烂了!
父母房产留给子女,今后无需再花数万费用,这3种办法合法还省钱
银行房产抵押利率内幕,90% 人都被中介忽悠了!
西安二手房3月成交1.1万套,但一半业主在"卖了个寂寞"
西安高新区二手房成交价
#大连房产 #现场实拍 #超高性价比 #一个敢说真话的房产人 #专业的事交给专业的人来做
东莞二手房成交最新数据【第20260410】
随机文章
10个月宝宝每天需要喝多少奶粉?
成都武侯区最新二手房成交数据记录[20260410期]
留给子孙最好的传家宝,不是房产存折,而是这本“说”出来的回忆录
【义乌在线房产网】约35064.79㎡!义乌城区一地块将拆除
张雪峰离世北京苏州房产不在名下
【4.10铺面房产信息】昆钢附近2000平场地出租,自建房6间!
【江山房产】今日精选国际花城,学府七区近期有意出售的二手房源,买房多看几套,货比三家就不会买贵!
【法拍房产】:法拍上新!上海市青浦区香花桥街道清河湾路1278号1幢701-706室办公房
点击查看→ #小程序 ://贝壳找房丨二手房新房租房装修/cSdZpUWjsc5BQTb 为您推荐蓬江南商圈票选出来的聚焦房 区域热点 业主急售 随时看
【4.10】巴州海量二手房/出租房源精选推荐!
亏100多个都难找买家,如今二手房咋整
基本
文件
流程
错误
SQL
调试
请求信息 : 2026-04-20 03:02:13 HTTP/2.0 GET : https://a.mffb.com.cn/a/500191.html
运行时间 : 0.116102s [ 吞吐率:8.61req/s ] 内存消耗:4,802.91kb 文件加载:140
缓存信息 : 0 reads,0 writes
会话信息 : SESSION_ID=7c250e8c4d2f028c3b6532d50a01d68f
/yingpanguazai/ssd/ssd1/www/a.mffb.com.cn/public/index.php ( 0.79 KB )
/yingpanguazai/ssd/ssd1/www/a.mffb.com.cn/vendor/autoload.php ( 0.17 KB )
/yingpanguazai/ssd/ssd1/www/a.mffb.com.cn/vendor/composer/autoload_real.php ( 2.49 KB )
/yingpanguazai/ssd/ssd1/www/a.mffb.com.cn/vendor/composer/platform_check.php ( 0.90 KB )
/yingpanguazai/ssd/ssd1/www/a.mffb.com.cn/vendor/composer/ClassLoader.php ( 14.03 KB )
/yingpanguazai/ssd/ssd1/www/a.mffb.com.cn/vendor/composer/autoload_static.php ( 4.90 KB )
/yingpanguazai/ssd/ssd1/www/a.mffb.com.cn/vendor/topthink/think-helper/src/helper.php ( 8.34 KB )
/yingpanguazai/ssd/ssd1/www/a.mffb.com.cn/vendor/topthink/think-validate/src/helper.php ( 2.19 KB )
/yingpanguazai/ssd/ssd1/www/a.mffb.com.cn/vendor/topthink/think-orm/src/helper.php ( 1.47 KB )
/yingpanguazai/ssd/ssd1/www/a.mffb.com.cn/vendor/topthink/think-orm/stubs/load_stubs.php ( 0.16 KB )
/yingpanguazai/ssd/ssd1/www/a.mffb.com.cn/vendor/topthink/framework/src/think/Exception.php ( 1.69 KB )
/yingpanguazai/ssd/ssd1/www/a.mffb.com.cn/vendor/topthink/think-container/src/Facade.php ( 2.71 KB )
/yingpanguazai/ssd/ssd1/www/a.mffb.com.cn/vendor/symfony/deprecation-contracts/function.php ( 0.99 KB )
/yingpanguazai/ssd/ssd1/www/a.mffb.com.cn/vendor/symfony/polyfill-mbstring/bootstrap.php ( 8.26 KB )
/yingpanguazai/ssd/ssd1/www/a.mffb.com.cn/vendor/symfony/polyfill-mbstring/bootstrap80.php ( 9.78 KB )
/yingpanguazai/ssd/ssd1/www/a.mffb.com.cn/vendor/symfony/var-dumper/Resources/functions/dump.php ( 1.49 KB )
/yingpanguazai/ssd/ssd1/www/a.mffb.com.cn/vendor/topthink/think-dumper/src/helper.php ( 0.18 KB )
/yingpanguazai/ssd/ssd1/www/a.mffb.com.cn/vendor/symfony/var-dumper/VarDumper.php ( 4.30 KB )
/yingpanguazai/ssd/ssd1/www/a.mffb.com.cn/vendor/topthink/framework/src/think/App.php ( 15.30 KB )
/yingpanguazai/ssd/ssd1/www/a.mffb.com.cn/vendor/topthink/think-container/src/Container.php ( 15.76 KB )
/yingpanguazai/ssd/ssd1/www/a.mffb.com.cn/vendor/psr/container/src/ContainerInterface.php ( 1.02 KB )
/yingpanguazai/ssd/ssd1/www/a.mffb.com.cn/app/provider.php ( 0.19 KB )
/yingpanguazai/ssd/ssd1/www/a.mffb.com.cn/vendor/topthink/framework/src/think/Http.php ( 6.04 KB )
/yingpanguazai/ssd/ssd1/www/a.mffb.com.cn/vendor/topthink/think-helper/src/helper/Str.php ( 7.29 KB )
/yingpanguazai/ssd/ssd1/www/a.mffb.com.cn/vendor/topthink/framework/src/think/Env.php ( 4.68 KB )
/yingpanguazai/ssd/ssd1/www/a.mffb.com.cn/app/common.php ( 0.03 KB )
/yingpanguazai/ssd/ssd1/www/a.mffb.com.cn/vendor/topthink/framework/src/helper.php ( 18.78 KB )
/yingpanguazai/ssd/ssd1/www/a.mffb.com.cn/vendor/topthink/framework/src/think/Config.php ( 5.54 KB )
/yingpanguazai/ssd/ssd1/www/a.mffb.com.cn/config/app.php ( 0.95 KB )
/yingpanguazai/ssd/ssd1/www/a.mffb.com.cn/config/cache.php ( 0.78 KB )
/yingpanguazai/ssd/ssd1/www/a.mffb.com.cn/config/console.php ( 0.23 KB )
/yingpanguazai/ssd/ssd1/www/a.mffb.com.cn/config/cookie.php ( 0.56 KB )
/yingpanguazai/ssd/ssd1/www/a.mffb.com.cn/config/database.php ( 2.48 KB )
/yingpanguazai/ssd/ssd1/www/a.mffb.com.cn/vendor/topthink/framework/src/think/facade/Env.php ( 1.67 KB )
/yingpanguazai/ssd/ssd1/www/a.mffb.com.cn/config/filesystem.php ( 0.61 KB )
/yingpanguazai/ssd/ssd1/www/a.mffb.com.cn/config/lang.php ( 0.91 KB )
/yingpanguazai/ssd/ssd1/www/a.mffb.com.cn/config/log.php ( 1.35 KB )
/yingpanguazai/ssd/ssd1/www/a.mffb.com.cn/config/middleware.php ( 0.19 KB )
/yingpanguazai/ssd/ssd1/www/a.mffb.com.cn/config/route.php ( 1.89 KB )
/yingpanguazai/ssd/ssd1/www/a.mffb.com.cn/config/session.php ( 0.57 KB )
/yingpanguazai/ssd/ssd1/www/a.mffb.com.cn/config/trace.php ( 0.34 KB )
/yingpanguazai/ssd/ssd1/www/a.mffb.com.cn/config/view.php ( 0.82 KB )
/yingpanguazai/ssd/ssd1/www/a.mffb.com.cn/app/event.php ( 0.25 KB )
/yingpanguazai/ssd/ssd1/www/a.mffb.com.cn/vendor/topthink/framework/src/think/Event.php ( 7.67 KB )
/yingpanguazai/ssd/ssd1/www/a.mffb.com.cn/app/service.php ( 0.13 KB )
/yingpanguazai/ssd/ssd1/www/a.mffb.com.cn/app/AppService.php ( 0.26 KB )
/yingpanguazai/ssd/ssd1/www/a.mffb.com.cn/vendor/topthink/framework/src/think/Service.php ( 1.64 KB )
/yingpanguazai/ssd/ssd1/www/a.mffb.com.cn/vendor/topthink/framework/src/think/Lang.php ( 7.35 KB )
/yingpanguazai/ssd/ssd1/www/a.mffb.com.cn/vendor/topthink/framework/src/lang/zh-cn.php ( 13.70 KB )
/yingpanguazai/ssd/ssd1/www/a.mffb.com.cn/vendor/topthink/framework/src/think/initializer/Error.php ( 3.31 KB )
/yingpanguazai/ssd/ssd1/www/a.mffb.com.cn/vendor/topthink/framework/src/think/initializer/RegisterService.php ( 1.33 KB )
/yingpanguazai/ssd/ssd1/www/a.mffb.com.cn/vendor/services.php ( 0.14 KB )
/yingpanguazai/ssd/ssd1/www/a.mffb.com.cn/vendor/topthink/framework/src/think/service/PaginatorService.php ( 1.52 KB )
/yingpanguazai/ssd/ssd1/www/a.mffb.com.cn/vendor/topthink/framework/src/think/service/ValidateService.php ( 0.99 KB )
/yingpanguazai/ssd/ssd1/www/a.mffb.com.cn/vendor/topthink/framework/src/think/service/ModelService.php ( 2.04 KB )
/yingpanguazai/ssd/ssd1/www/a.mffb.com.cn/vendor/topthink/think-trace/src/Service.php ( 0.77 KB )
/yingpanguazai/ssd/ssd1/www/a.mffb.com.cn/vendor/topthink/framework/src/think/Middleware.php ( 6.72 KB )
/yingpanguazai/ssd/ssd1/www/a.mffb.com.cn/vendor/topthink/framework/src/think/initializer/BootService.php ( 0.77 KB )
/yingpanguazai/ssd/ssd1/www/a.mffb.com.cn/vendor/topthink/think-orm/src/Paginator.php ( 11.86 KB )
/yingpanguazai/ssd/ssd1/www/a.mffb.com.cn/vendor/topthink/think-validate/src/Validate.php ( 63.20 KB )
/yingpanguazai/ssd/ssd1/www/a.mffb.com.cn/vendor/topthink/think-orm/src/Model.php ( 23.55 KB )
/yingpanguazai/ssd/ssd1/www/a.mffb.com.cn/vendor/topthink/think-orm/src/model/concern/Attribute.php ( 21.05 KB )
/yingpanguazai/ssd/ssd1/www/a.mffb.com.cn/vendor/topthink/think-orm/src/model/concern/AutoWriteData.php ( 4.21 KB )
/yingpanguazai/ssd/ssd1/www/a.mffb.com.cn/vendor/topthink/think-orm/src/model/concern/Conversion.php ( 6.44 KB )
/yingpanguazai/ssd/ssd1/www/a.mffb.com.cn/vendor/topthink/think-orm/src/model/concern/DbConnect.php ( 5.16 KB )
/yingpanguazai/ssd/ssd1/www/a.mffb.com.cn/vendor/topthink/think-orm/src/model/concern/ModelEvent.php ( 2.33 KB )
/yingpanguazai/ssd/ssd1/www/a.mffb.com.cn/vendor/topthink/think-orm/src/model/concern/RelationShip.php ( 28.29 KB )
/yingpanguazai/ssd/ssd1/www/a.mffb.com.cn/vendor/topthink/think-helper/src/contract/Arrayable.php ( 0.09 KB )
/yingpanguazai/ssd/ssd1/www/a.mffb.com.cn/vendor/topthink/think-helper/src/contract/Jsonable.php ( 0.13 KB )
/yingpanguazai/ssd/ssd1/www/a.mffb.com.cn/vendor/topthink/think-orm/src/model/contract/Modelable.php ( 0.09 KB )
/yingpanguazai/ssd/ssd1/www/a.mffb.com.cn/vendor/topthink/framework/src/think/Db.php ( 2.88 KB )
/yingpanguazai/ssd/ssd1/www/a.mffb.com.cn/vendor/topthink/think-orm/src/DbManager.php ( 8.52 KB )
/yingpanguazai/ssd/ssd1/www/a.mffb.com.cn/vendor/topthink/framework/src/think/Log.php ( 6.28 KB )
/yingpanguazai/ssd/ssd1/www/a.mffb.com.cn/vendor/topthink/framework/src/think/Manager.php ( 3.92 KB )
/yingpanguazai/ssd/ssd1/www/a.mffb.com.cn/vendor/psr/log/src/LoggerTrait.php ( 2.69 KB )
/yingpanguazai/ssd/ssd1/www/a.mffb.com.cn/vendor/psr/log/src/LoggerInterface.php ( 2.71 KB )
/yingpanguazai/ssd/ssd1/www/a.mffb.com.cn/vendor/topthink/framework/src/think/Cache.php ( 4.92 KB )
/yingpanguazai/ssd/ssd1/www/a.mffb.com.cn/vendor/psr/simple-cache/src/CacheInterface.php ( 4.71 KB )
/yingpanguazai/ssd/ssd1/www/a.mffb.com.cn/vendor/topthink/think-helper/src/helper/Arr.php ( 16.63 KB )
/yingpanguazai/ssd/ssd1/www/a.mffb.com.cn/vendor/topthink/framework/src/think/cache/driver/File.php ( 7.84 KB )
/yingpanguazai/ssd/ssd1/www/a.mffb.com.cn/vendor/topthink/framework/src/think/cache/Driver.php ( 9.03 KB )
/yingpanguazai/ssd/ssd1/www/a.mffb.com.cn/vendor/topthink/framework/src/think/contract/CacheHandlerInterface.php ( 1.99 KB )
/yingpanguazai/ssd/ssd1/www/a.mffb.com.cn/app/Request.php ( 0.09 KB )
/yingpanguazai/ssd/ssd1/www/a.mffb.com.cn/vendor/topthink/framework/src/think/Request.php ( 55.78 KB )
/yingpanguazai/ssd/ssd1/www/a.mffb.com.cn/app/middleware.php ( 0.25 KB )
/yingpanguazai/ssd/ssd1/www/a.mffb.com.cn/vendor/topthink/framework/src/think/Pipeline.php ( 2.61 KB )
/yingpanguazai/ssd/ssd1/www/a.mffb.com.cn/vendor/topthink/think-trace/src/TraceDebug.php ( 3.40 KB )
/yingpanguazai/ssd/ssd1/www/a.mffb.com.cn/vendor/topthink/framework/src/think/middleware/SessionInit.php ( 1.94 KB )
/yingpanguazai/ssd/ssd1/www/a.mffb.com.cn/vendor/topthink/framework/src/think/Session.php ( 1.80 KB )
/yingpanguazai/ssd/ssd1/www/a.mffb.com.cn/vendor/topthink/framework/src/think/session/driver/File.php ( 6.27 KB )
/yingpanguazai/ssd/ssd1/www/a.mffb.com.cn/vendor/topthink/framework/src/think/contract/SessionHandlerInterface.php ( 0.87 KB )
/yingpanguazai/ssd/ssd1/www/a.mffb.com.cn/vendor/topthink/framework/src/think/session/Store.php ( 7.12 KB )
/yingpanguazai/ssd/ssd1/www/a.mffb.com.cn/vendor/topthink/framework/src/think/Route.php ( 23.73 KB )
/yingpanguazai/ssd/ssd1/www/a.mffb.com.cn/vendor/topthink/framework/src/think/route/RuleName.php ( 5.75 KB )
/yingpanguazai/ssd/ssd1/www/a.mffb.com.cn/vendor/topthink/framework/src/think/route/Domain.php ( 2.53 KB )
/yingpanguazai/ssd/ssd1/www/a.mffb.com.cn/vendor/topthink/framework/src/think/route/RuleGroup.php ( 22.43 KB )
/yingpanguazai/ssd/ssd1/www/a.mffb.com.cn/vendor/topthink/framework/src/think/route/Rule.php ( 26.95 KB )
/yingpanguazai/ssd/ssd1/www/a.mffb.com.cn/vendor/topthink/framework/src/think/route/RuleItem.php ( 9.78 KB )
/yingpanguazai/ssd/ssd1/www/a.mffb.com.cn/route/app.php ( 1.72 KB )
/yingpanguazai/ssd/ssd1/www/a.mffb.com.cn/vendor/topthink/framework/src/think/facade/Route.php ( 4.70 KB )
/yingpanguazai/ssd/ssd1/www/a.mffb.com.cn/vendor/topthink/framework/src/think/route/dispatch/Controller.php ( 4.74 KB )
/yingpanguazai/ssd/ssd1/www/a.mffb.com.cn/vendor/topthink/framework/src/think/route/Dispatch.php ( 10.44 KB )
/yingpanguazai/ssd/ssd1/www/a.mffb.com.cn/app/controller/Index.php ( 4.81 KB )
/yingpanguazai/ssd/ssd1/www/a.mffb.com.cn/app/BaseController.php ( 2.05 KB )
/yingpanguazai/ssd/ssd1/www/a.mffb.com.cn/vendor/topthink/think-orm/src/facade/Db.php ( 0.93 KB )
/yingpanguazai/ssd/ssd1/www/a.mffb.com.cn/vendor/topthink/think-orm/src/db/connector/Mysql.php ( 5.44 KB )
/yingpanguazai/ssd/ssd1/www/a.mffb.com.cn/vendor/topthink/think-orm/src/db/PDOConnection.php ( 52.47 KB )
/yingpanguazai/ssd/ssd1/www/a.mffb.com.cn/vendor/topthink/think-orm/src/db/Connection.php ( 8.39 KB )
/yingpanguazai/ssd/ssd1/www/a.mffb.com.cn/vendor/topthink/think-orm/src/db/ConnectionInterface.php ( 4.57 KB )
/yingpanguazai/ssd/ssd1/www/a.mffb.com.cn/vendor/topthink/think-orm/src/db/builder/Mysql.php ( 16.58 KB )
/yingpanguazai/ssd/ssd1/www/a.mffb.com.cn/vendor/topthink/think-orm/src/db/Builder.php ( 24.06 KB )
/yingpanguazai/ssd/ssd1/www/a.mffb.com.cn/vendor/topthink/think-orm/src/db/BaseBuilder.php ( 27.50 KB )
/yingpanguazai/ssd/ssd1/www/a.mffb.com.cn/vendor/topthink/think-orm/src/db/Query.php ( 15.71 KB )
/yingpanguazai/ssd/ssd1/www/a.mffb.com.cn/vendor/topthink/think-orm/src/db/BaseQuery.php ( 45.13 KB )
/yingpanguazai/ssd/ssd1/www/a.mffb.com.cn/vendor/topthink/think-orm/src/db/concern/TimeFieldQuery.php ( 7.43 KB )
/yingpanguazai/ssd/ssd1/www/a.mffb.com.cn/vendor/topthink/think-orm/src/db/concern/AggregateQuery.php ( 3.26 KB )
/yingpanguazai/ssd/ssd1/www/a.mffb.com.cn/vendor/topthink/think-orm/src/db/concern/ModelRelationQuery.php ( 20.07 KB )
/yingpanguazai/ssd/ssd1/www/a.mffb.com.cn/vendor/topthink/think-orm/src/db/concern/ParamsBind.php ( 3.66 KB )
/yingpanguazai/ssd/ssd1/www/a.mffb.com.cn/vendor/topthink/think-orm/src/db/concern/ResultOperation.php ( 7.01 KB )
/yingpanguazai/ssd/ssd1/www/a.mffb.com.cn/vendor/topthink/think-orm/src/db/concern/WhereQuery.php ( 19.37 KB )
/yingpanguazai/ssd/ssd1/www/a.mffb.com.cn/vendor/topthink/think-orm/src/db/concern/JoinAndViewQuery.php ( 7.11 KB )
/yingpanguazai/ssd/ssd1/www/a.mffb.com.cn/vendor/topthink/think-orm/src/db/concern/TableFieldInfo.php ( 2.63 KB )
/yingpanguazai/ssd/ssd1/www/a.mffb.com.cn/vendor/topthink/think-orm/src/db/concern/Transaction.php ( 2.77 KB )
/yingpanguazai/ssd/ssd1/www/a.mffb.com.cn/vendor/topthink/framework/src/think/log/driver/File.php ( 5.96 KB )
/yingpanguazai/ssd/ssd1/www/a.mffb.com.cn/vendor/topthink/framework/src/think/contract/LogHandlerInterface.php ( 0.86 KB )
/yingpanguazai/ssd/ssd1/www/a.mffb.com.cn/vendor/topthink/framework/src/think/log/Channel.php ( 3.89 KB )
/yingpanguazai/ssd/ssd1/www/a.mffb.com.cn/vendor/topthink/framework/src/think/event/LogRecord.php ( 1.02 KB )
/yingpanguazai/ssd/ssd1/www/a.mffb.com.cn/vendor/topthink/think-helper/src/Collection.php ( 16.47 KB )
/yingpanguazai/ssd/ssd1/www/a.mffb.com.cn/vendor/topthink/framework/src/think/facade/View.php ( 1.70 KB )
/yingpanguazai/ssd/ssd1/www/a.mffb.com.cn/vendor/topthink/framework/src/think/View.php ( 4.39 KB )
/yingpanguazai/ssd/ssd1/www/a.mffb.com.cn/vendor/topthink/framework/src/think/Response.php ( 8.81 KB )
/yingpanguazai/ssd/ssd1/www/a.mffb.com.cn/vendor/topthink/framework/src/think/response/View.php ( 3.29 KB )
/yingpanguazai/ssd/ssd1/www/a.mffb.com.cn/vendor/topthink/framework/src/think/Cookie.php ( 6.06 KB )
/yingpanguazai/ssd/ssd1/www/a.mffb.com.cn/vendor/topthink/think-view/src/Think.php ( 8.38 KB )
/yingpanguazai/ssd/ssd1/www/a.mffb.com.cn/vendor/topthink/framework/src/think/contract/TemplateHandlerInterface.php ( 1.60 KB )
/yingpanguazai/ssd/ssd1/www/a.mffb.com.cn/vendor/topthink/think-template/src/Template.php ( 46.61 KB )
/yingpanguazai/ssd/ssd1/www/a.mffb.com.cn/vendor/topthink/think-template/src/template/driver/File.php ( 2.41 KB )
/yingpanguazai/ssd/ssd1/www/a.mffb.com.cn/vendor/topthink/think-template/src/template/contract/DriverInterface.php ( 0.86 KB )
/yingpanguazai/ssd/ssd1/www/a.mffb.com.cn/runtime/temp/cbe9940b986bd319e8e4ad9d69892652.php ( 11.98 KB )
/yingpanguazai/ssd/ssd1/www/a.mffb.com.cn/vendor/topthink/think-trace/src/Html.php ( 4.42 KB )
CONNECT:[ UseTime:0.000397s ] mysql:host=127.0.0.1;port=3306;dbname=a_mffb;charset=utf8mb4
SHOW FULL COLUMNS FROM `fenlei` [ RunTime:0.000536s ]
SELECT * FROM `fenlei` WHERE `fid` = 0 [ RunTime:0.000285s ]
SELECT * FROM `fenlei` WHERE `fid` = 63 [ RunTime:0.000268s ]
SHOW FULL COLUMNS FROM `set` [ RunTime:0.000484s ]
SELECT * FROM `set` [ RunTime:0.000193s ]
SHOW FULL COLUMNS FROM `article` [ RunTime:0.000491s ]
SELECT * FROM `article` WHERE `id` = 500191 LIMIT 1 [ RunTime:0.003701s ]
UPDATE `article` SET `lasttime` = 1776625334 WHERE `id` = 500191 [ RunTime:0.001356s ]
SELECT * FROM `fenlei` WHERE `id` = 66 LIMIT 1 [ RunTime:0.000229s ]
SELECT * FROM `article` WHERE `id` < 500191 ORDER BY `id` DESC LIMIT 1 [ RunTime:0.008118s ]
SELECT * FROM `article` WHERE `id` > 500191 ORDER BY `id` ASC LIMIT 1 [ RunTime:0.001191s ]
SELECT * FROM `article` WHERE `id` < 500191 ORDER BY `id` DESC LIMIT 10 [ RunTime:0.013634s ]
SELECT * FROM `article` WHERE `id` < 500191 ORDER BY `id` DESC LIMIT 10,10 [ RunTime:0.015154s ]
SELECT * FROM `article` WHERE `id` < 500191 ORDER BY `id` DESC LIMIT 20,10 [ RunTime:0.004370s ]
0.117616s