● Z260303-05
安居/出租
地址:Budapest, Károly krt. 3, 1075
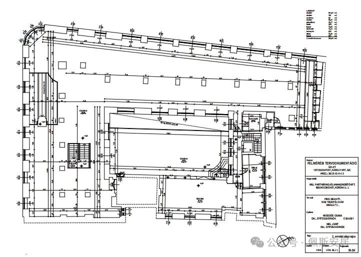
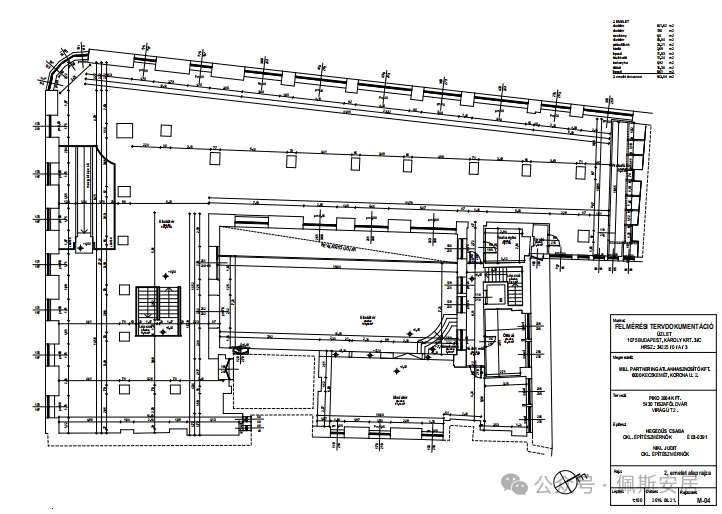
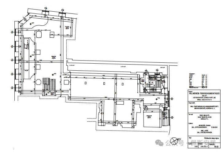
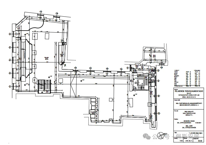
总层高:四层(-1,0,1,2)
总面积:2000㎡+
楼层面积分布
🔹 -1 层:99 ㎡
🔹 0 层:503 ㎡
🔹 1 层:510 ㎡
🔹 2 层:943 ㎡
✔ 自动扶梯连接各层
✔ 商场式开放格局
✔ 大面积展示空间
✔ 独立出入口
电梯:有扶梯

💎 核心优势
• 拐角整栋展示面• 大体量商业空间稀缺• 多层结构完整• 可直接运营• 市中心不可复制地段
🌟成熟商场结构,空间格局完整,可快速接手运营或整体品牌升级。
🌆 区位优势
项目坐落于 Budapest 市中心核心主干大道,紧邻 Deák Ferenc tér 核心商圈,属于城市级交通与商业枢纽地段。
地处多条主干道交汇位置,人流高度集中,全天候客流稳定。
地铁、电车、公交网络全覆盖,连接布达与佩斯各大区域,通达性极强。
黄金转角展示面,视野开阔,旅游客流与本地消费人群双重叠加,具备持续稳定的商业转化潜力。
🛍 适合业态
✔ 零售商店✔ 大型服装卖场✔ 生活方式集合店✔ 折扣百货商场✔ 运动品牌展示店✔ 电商线下体验店
这是一处具备城市级商业价值的大体量整栋物业,兼具核心区位、规模优势与品牌展示潜力,适合打造区域旗舰或综合商业项目。无论是追求高曝光的品牌方,还是希望布局核心资产的运营方,这都是一项兼具形象高度与长期商业潜力的优质选择。
联系电话:0036 30 0719666
客服微信:Anxinfangchan99