分析解说房产走势,北京购房指南.创作不易,关注更多北京新房,关注"中恩选房"!【重要提醒】最近微信推荐机制调整,大家可能会收不到推送,别忘了给本公众号加上星标⭐哦!售楼处电话 400-6999-853【官网】(来电尊享优惠活动)2026 北京楼市小阳春,二手房狂卖近 19886 套,身边人人跟风抢二手刚需房。我看房大半年,越看越纠结:老房源户型老旧拥挤,溢价还高,憋屈又不划算。


直到发现全网最低调的爆款:中海玖树满和。


项目 3 月 25 日开盘仅一周,狂签301 套,拿下北京新房成交三冠王,578 套房源去化过半。全程不发开盘海报,只靠真实网签实力出圈,央企中海稳健踏实,第一眼就让人安心。

【此处插入:75㎡刚需两居户型图】
先看小户型刚需首选:75㎡两居格局方正通透,动线干净利落。项目整体得房率超 90%,比普通新房、二手房多出不少实用面积,刚需预算也能住得舒展不压抑。

【此处插入:75㎡客厅样板间实拍图】
走进75㎡样板间客厅瞬间心动:开间敞亮采光充足,现代简约精装风格耐看又百搭。无多余浪费空间,日常会客、休闲追剧都舒适,年轻小两口自住刚刚好。

【此处插入:95㎡进阶三居户型图】
想要一步到位,95㎡全能三居是最优选择。经典动静分区设计,主卧独立私密,次卧安静宜居,轻松满足三口之家 + 老人同住的居住需求。

【此处插入:95㎡主卧 + 卫浴样板间实拍图】
95㎡主卧样板间质感拉满:飘窗观景实用兼备,独立卫浴干湿分离,精装用料扎实细节考究。入住无需二次改造,省心又省钱。

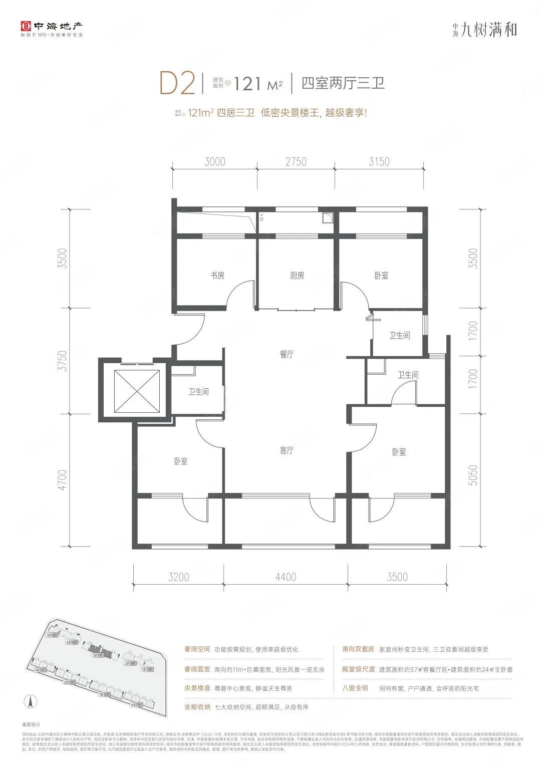
【此处插入:121㎡改善大四居户型图】
大家庭改善直接锁定 121㎡大四居,宽厅横厅设计,功能分区清晰,收纳规划完善,陪伴家庭长期成长毫无压力。

【此处插入:121㎡餐厨一体样板间实拍图】
121㎡餐厨样板间通透大气:客餐厅一体化格局开阔敞亮,厨房动线合理,一家人聚餐待客宽敞从容,生活仪式感直接拉满。

项目扎根通州老城核心,近地铁、商超学校配套成熟。均价仅 5.16 万 /㎡,比周边二手房挂牌价更低,实现新房价格倒挂,叠加专属购房优惠性价比拉满。
当下买房不追热度只看实在。亮眼成交数据、全面积优质户型 + 实景样板质感,果断告别老旧二手房,玖树满和,就是普通人最踏实的安家选择。