

马上扫码加入
地产天下专属粉丝群
与众多房友 地产大V
零距离交流互动
News.1

News.2
上海“沪七条”新政落地后,保利·都汇和煦持续热销,新政后单日最高热销纪录刷新至16套,单日最高转化20%,印证了其认可度。

News.3
奉贤南桥2幅地块的控规调整批复:
C02B-06地块由商办用地,改为容积率1.05低密住宅用地;
C03C-01地块由容积率2.2的高层住宅,调整为容积率1.1的低密住宅。

News.4
2026年3月24日,金茂上海公司正式乔迁至北外滩金茂中心。

News.5
3月14日,成交1472套
3月15日,成交1390套
3月16日,成交964套
3月17日,成交880套
3月18日,成交906套
3月19日,成交908套
3月20日,成交1012套
3月21日,成交1436套
3月22日,成交1382套
3月23日,成交944套
3月24日,成交871套
3月25日,成交1014套
News.6
根据规划设计方案显示,项目全域抬板,规划11栋16-17 层小高层,全部两梯两户,部分楼栋打造首层架空

News.7
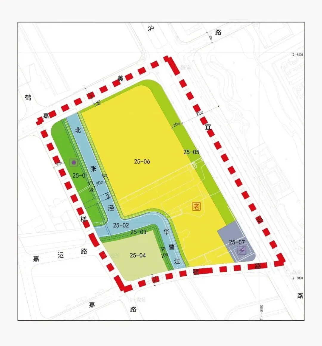
大华星屿北侧有新低密宅地!
昨日,《上海市嘉定区JDC2-0202单元控制性详细规划21、23、25、30、44街坊局部调整》正式获批!该规划内容主要提到:嘉定南翔将新增一幅二类三类混合住宅用地!25-06地块:用地面积40356㎡,用地性质为Rr3Rr2,容积率仅1.3,建筑面积约52462.8㎡,限高30米,并配建一处建筑面积不少于200㎡的老年活动室。
News.8
日前,虹口区正式公布轨道交通20号线一期东段广灵二路站房屋征收补偿方案。该方案涉及石油新村5-7号等49证居民,征收范围已明确。方案首提“房票”奖励安置模式,为被征收人提供多元化补偿选择。奖励内容包括一年内购买住房的,可凭不动产权证领取1200元/㎡×被征收房屋建筑面积的房票安置奖励,保底6万元。如购买虹口区内住房的,奖励标准提高到2000元/㎡,保底10万元。目前相关评估工作已启动,标志着该项目进入实质推进阶段。

News.9
日前,江苏南京发布促进房地产市场稳定发展6条措施,涉及“以旧换新”贴息、首付比例调整、继续推行“房票”政策等内容。

此次新政中,针对“卖旧买新”的购房人给予贷款总金额1%的贴息。自政策发布之日起至2026年12月31日期间完成“卖旧买新”的购房人,给予贷款总金额1%的贴息补助。
News.10
最新消息:松江泗泾板块,容积率仅1.2全新低密住宅——泗泾·森屿,预计今年下半年开盘!
这是2025年12月由上海泗泾城市更新建设有限公司拿下的松江区泗泾镇SJSB0003单元03-05号地块(松江区泗泾镇古镇周边等地块城中村改造项目地块),作为泗泾镇城中村改造项目首发楼盘,将由泗泾镇与金地集团共同开发!
项目位于泗泾镇北部,同济晶萃一期和二期地块的中间,根据设计方案,项目拟建11栋3F住宅,以及2栋8F住宅产品,预计未来会打造成别墅、洋房等低密产品,其中一栋洋房首层局部架空。

整理于2026.3.23
END
往期回顾
实得率近100%的超绝户型,让南翔再一次站在上海住宅产品力之巅!
